网站支持IPv6
当前位置:首页 公示公告 > 关于旺苍县嘉川中心小学校新建校园建设方案的公示
关于旺苍县嘉川中心小学校新建校园建设方案的公示
发布时间:2019-01-11 来源:县规划建设和住房局 点击量:18061 [ 字体: ] 打印 分享:

旺苍县城乡规划建设和住房保障局

关于旺苍县嘉川中心小学校新建校园建设方案的

公        示

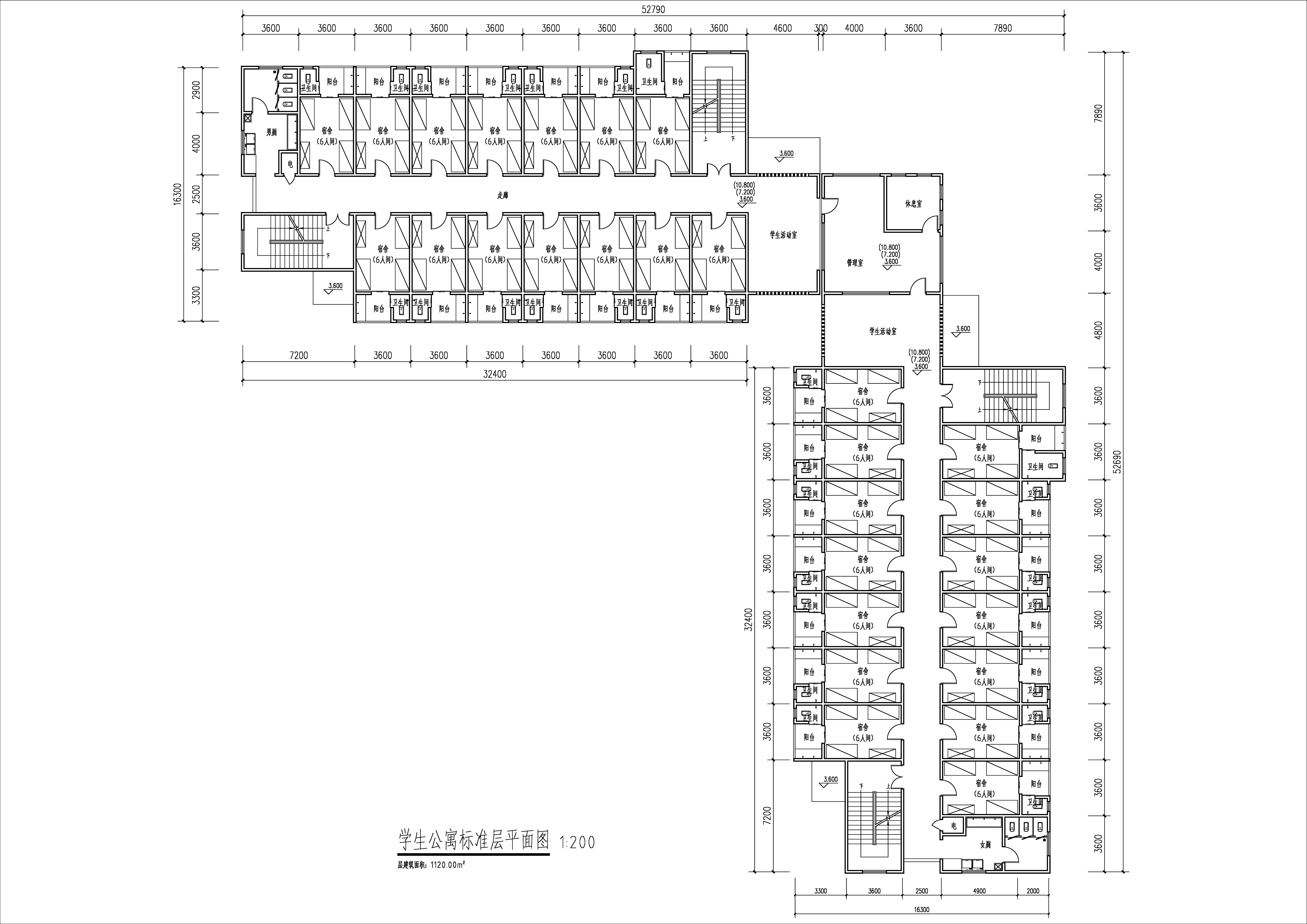
该拟建项目位于旺苍县嘉川镇原川北监狱地块内,用地面积46824.84㎡(合计70.23亩)。建设方案主要经济技术指标:总建筑面积30929㎡,其中北教学楼建筑面积3600㎡,南教学楼建筑面积4581㎡ ,专用教学楼建筑面积 3996㎡,综合楼建筑面积2418㎡ ,教师周转房建筑面积3355㎡,学生宿舍建筑面积4600㎡,食堂综合楼建筑面积4100㎡,门厅建筑面积1500㎡,看台建筑面积341㎡,门卫建筑面积88㎡ ,连廊建筑面积450㎡,地下室建筑面积1900㎡。容积率0.62,总建筑占地面积8924㎡,建筑密度19.06%,绿地率37.1%,停车位64辆(其中地上停车位26辆,地下车位38辆。)班数:48班(完全小学),每班人数:45人 ,共计2160人。

根据《中华人民共和国行政许可法》、《中华人民共和国城乡规划法》、《四川省城乡规划条例》、《关于城乡规划公开公示的规定》的规定,我局在建设项目现场、县政府网站(http://www.scgw.gov.cn)予以公示,公示时间2019年1月11日至2019年1月22日,敬请利害关系人以及广大市民在公示期内对该项目建设方案及经济技术指标向我局提出书面意见或建议,也可于5日内向我局提出听证申请。联系电话:0839-6211360。

特此公示

附:1.建设方案总平面布置图

2.建设方案平面图

3.建设方案效果图

4.日照分析图

5.功能分析图


二0一九年一月十一日

附件:图片1.jpg
附件:图片2.jpg
附件:图片5.jpg
附件:图片3.jpg
附件:图片4.jpg
附件:图片6.jpg
附件:图片7.jpg
附件:图片8.jpg
附件:图片9.jpg
附件:图片10.jpg