网站支持IPv6
当前位置:首页 公示公告 > 关于东河人民法庭审判业务用房建设方案的公示
关于东河人民法庭审判业务用房建设方案的公示
发布时间:2019-02-13 来源:县规划建设和住房局 点击量:13758 [ 字体: ] 打印 分享:

旺苍县城乡规划建设和住房保障局

关于东河人民法庭审判业务用房建设方案的

公          示


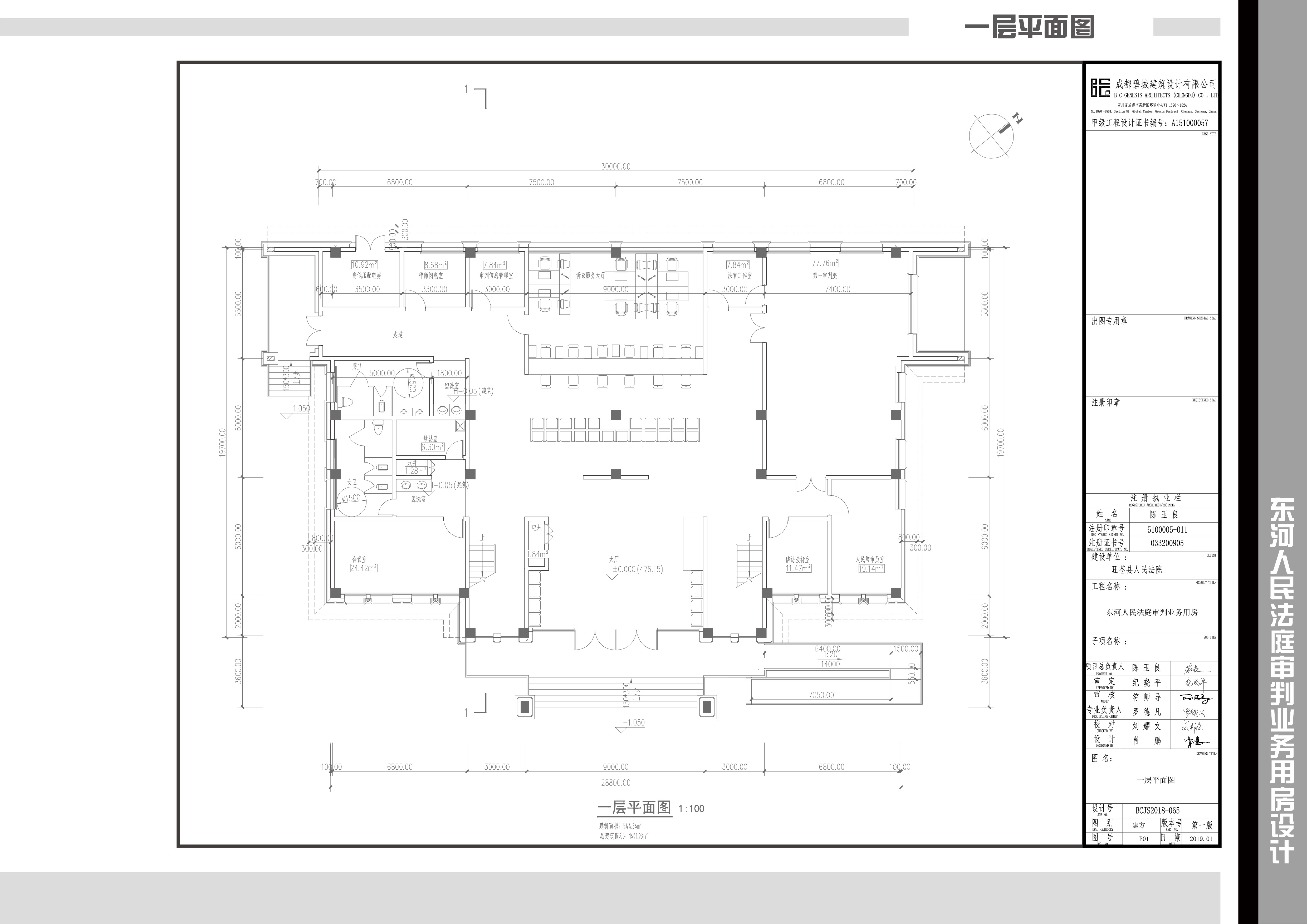
该拟建项目位于东河镇黄洋河路安置房东侧。用地面积1578.8㎡(约2.368亩)。

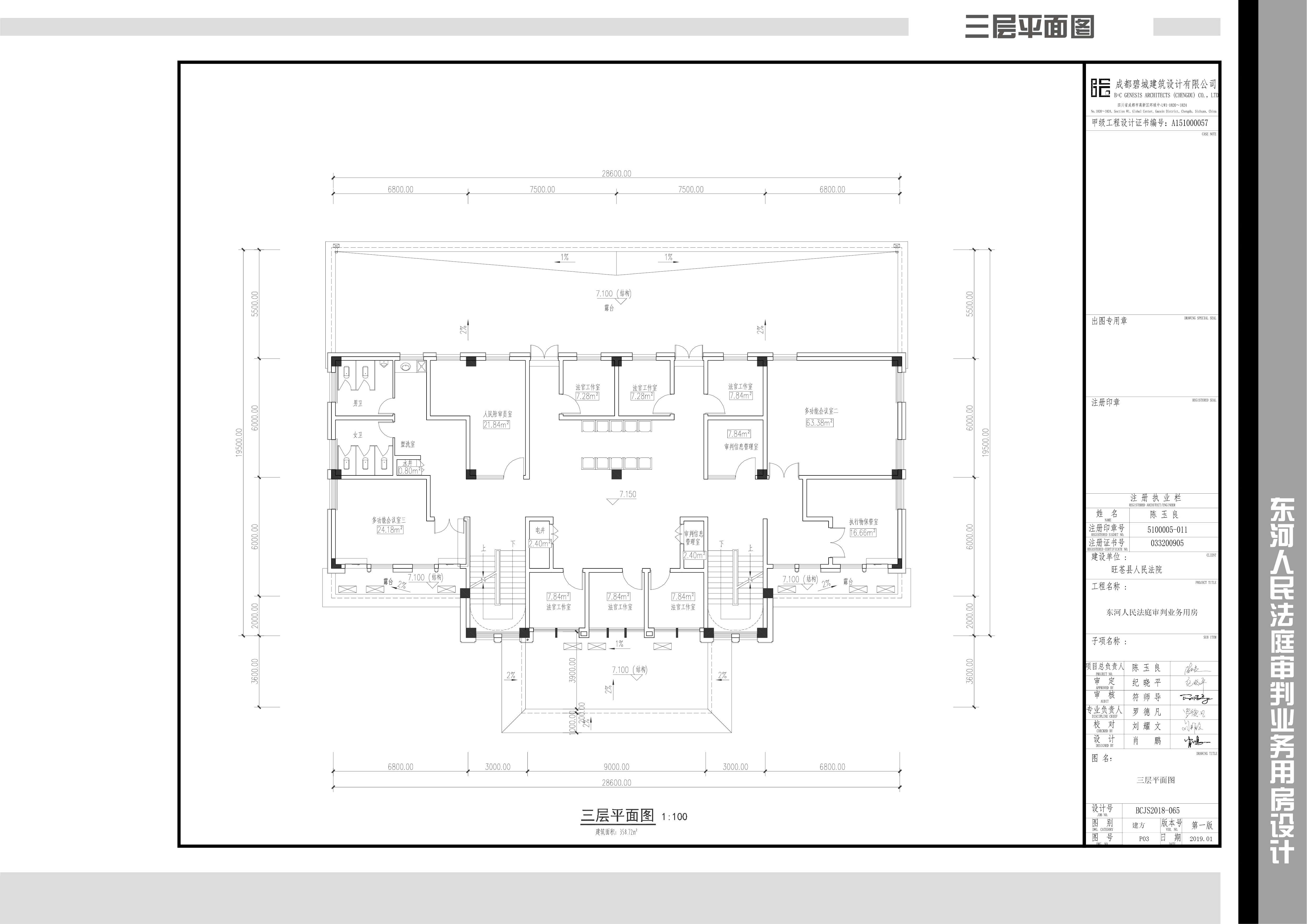
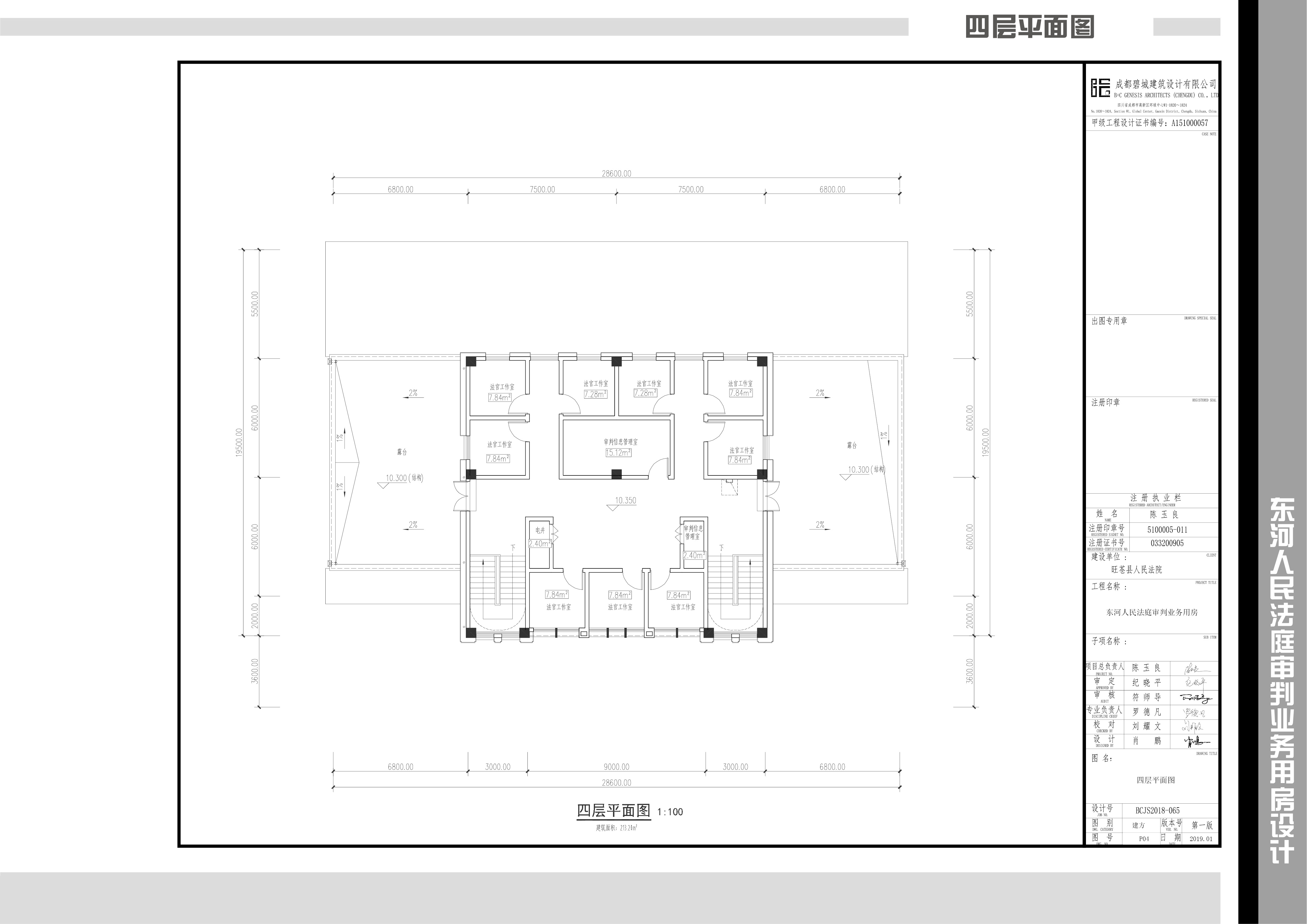
拟建方案总建筑面积1629.53㎡,其中审判庭建筑面积1601.93㎡,门卫室建筑面积27.6㎡。容积率1.03,建筑密度38.16%,绿地率23.41%,建筑层数4层,停车位13辆。

根据《中华人民共和国行政许可法》、《中华人民共和国城乡规划法》、《四川省城乡规划条例》、《关于城乡规划公开公示的规定》的规定,我局在建设项目现场、县政府网站(http://www.scgw.gov.cn)予以公示。公示时间:2019年2月13日至2019年2月25日。敬请利害关系人以及广大市民在公示期内对该项目建设相关事项向我局提出书面意见或建议,也可于5日内向我局提出听证申请。联系电话:0839-6211360。

特此公示

附:1.建设方案总平面布置图

2.建设方案效果图

3.建设方案平面图

4.日照分析图


二0一九年二月十三日

附件:平面图2.jpg
附件:平面图1.jpg
附件:平面图3.jpg
附件:平面图4.jpg
附件:平面图5.jpg
附件:效果图1.jpg
附件:效果图2.jpg