网站支持IPv6
当前位置:首页 公示公告 > 旺苍县城乡规划建设和住房保障局关于嘉川中心卫生院新建公卫楼建设方案的公示
旺苍县城乡规划建设和住房保障局关于嘉川中心卫生院新建公卫楼建设方案的公示
发布时间:2019-03-04 来源:县规划建设和住房局 点击量:20243 [ 字体: ] 打印 分享:

该拟建项目位于旺苍县嘉川镇中心卫生院。用地面积8615.14平方米(约12.92亩)。

经济技术指标为;总建筑面积6815.64平方米,其中新建建筑面积为1627.27平方米。容积率0.79,建筑占地面积1948.22平方米,新建建筑占地面积为 414.88 平方米,建筑密度22.61%,停车位51辆,建筑层数4层。

根据《中华人民共和国行政许可法》、《中华人民共和国城乡规划法》、《四川省城乡规划条例》、《关于城乡规划公开公示的规定》的规定,我局在建设项目现场、县政府网站(http://www.scgw.gov.cn)予以公示。公示时间:2019年3月4日至2019年3月14日。敬请利害关系人以及广大市民在公示期内对该项目建设相关事项向我局提出书面意见或建议,也可于5日内向我局提出听证申请。联系电话:0839-6211360。

特此公示

附:1.建设方案总平面布置图

2.建设方案效果图

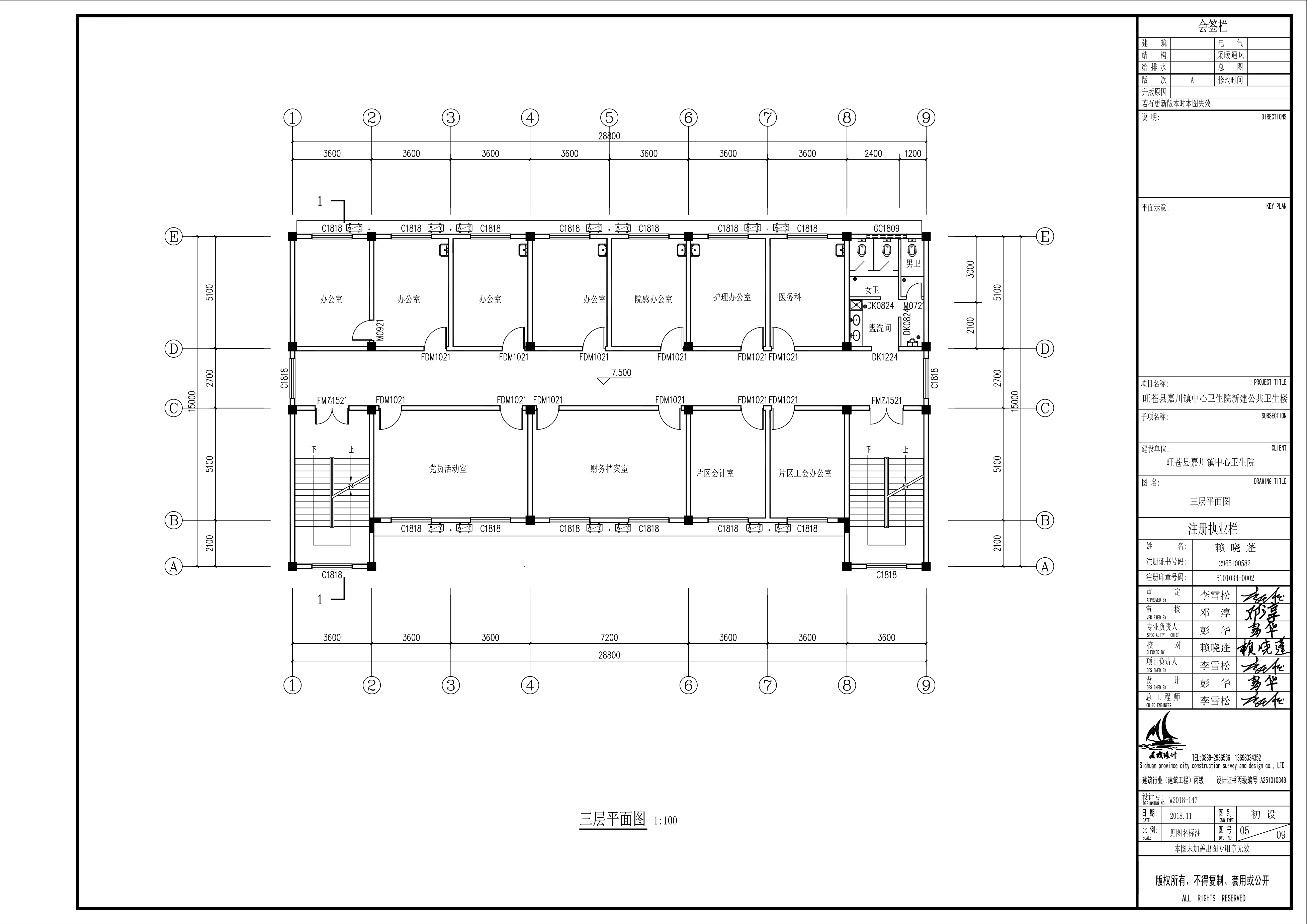
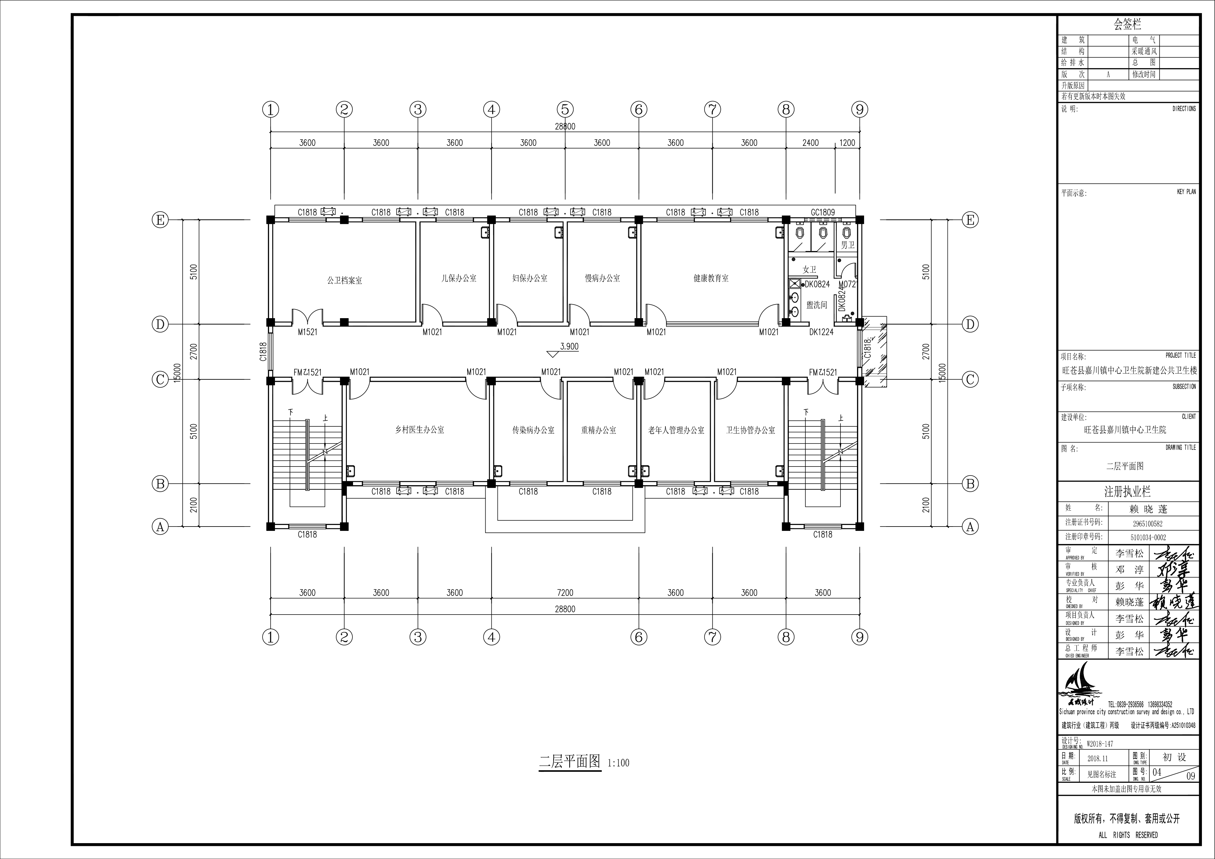
3.建设方案平面图

4.日照分析图



二0一九年三月四日

附件:效果图1.jpg
附件:效果图2.jpg