网站支持IPv6
当前位置:首页 公示公告 > 关于旺苍县医疗废物处置中心建设方案的公示
关于旺苍县医疗废物处置中心建设方案的公示
发布时间:2019-05-30 来源:县规划建设和住房局 点击量:5217 [ 字体: ] 打印 分享:

该拟建项目位于项目位于旺苍县嘉川镇石桥村。用地面积2898.89平方米(约4.35亩)。

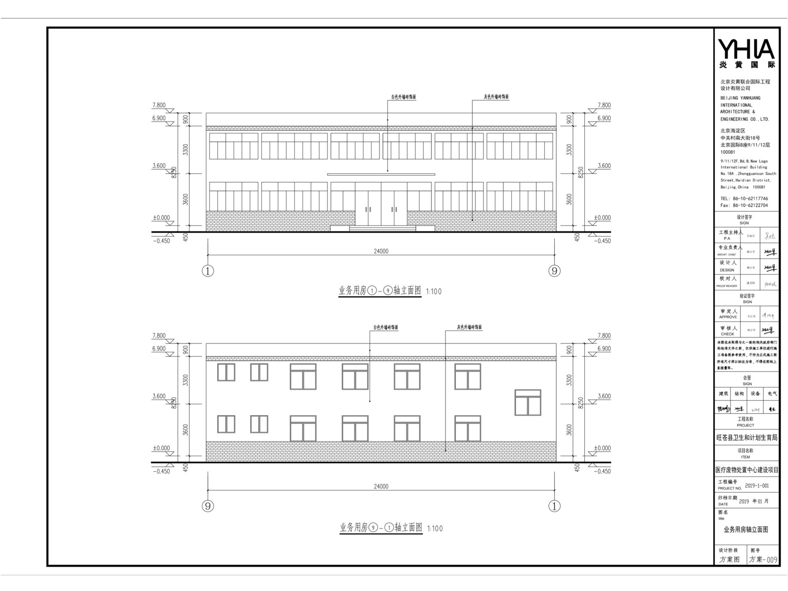
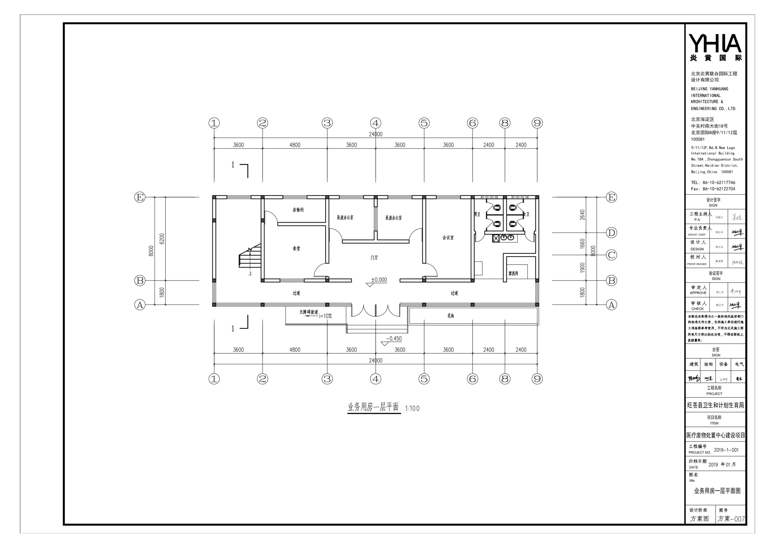
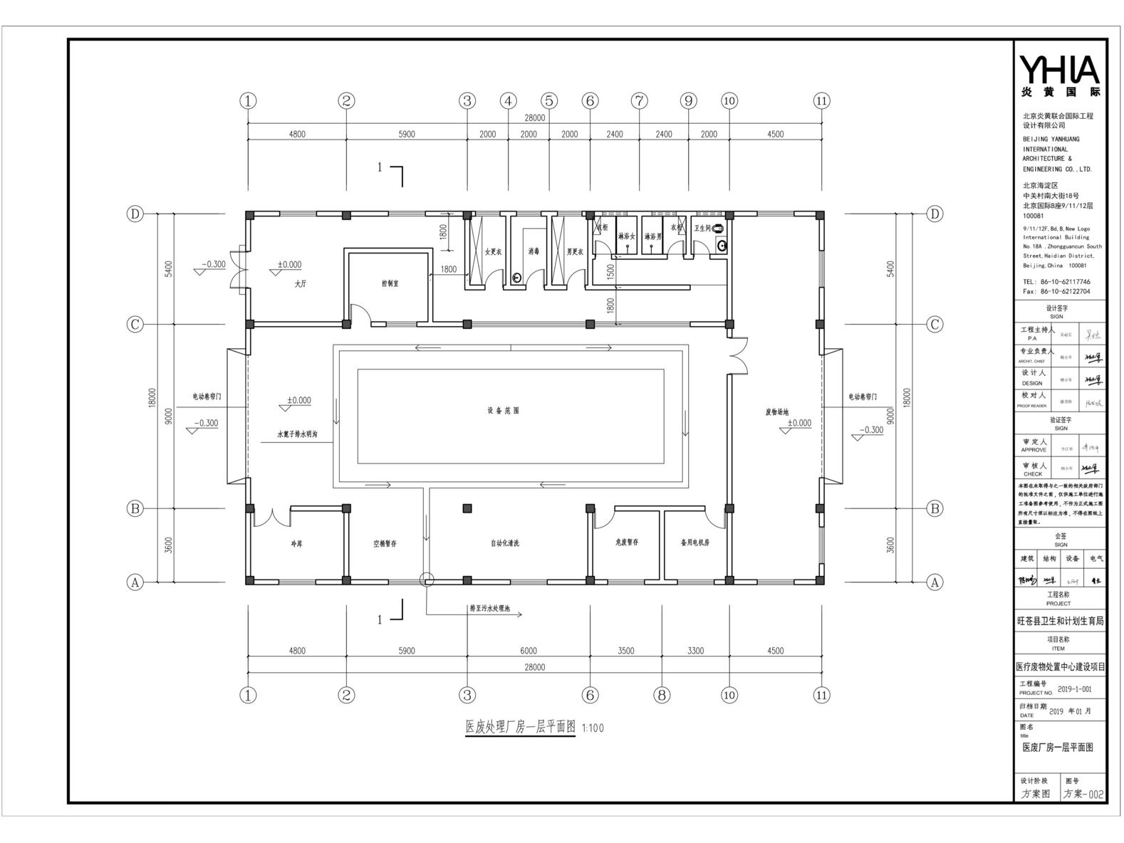
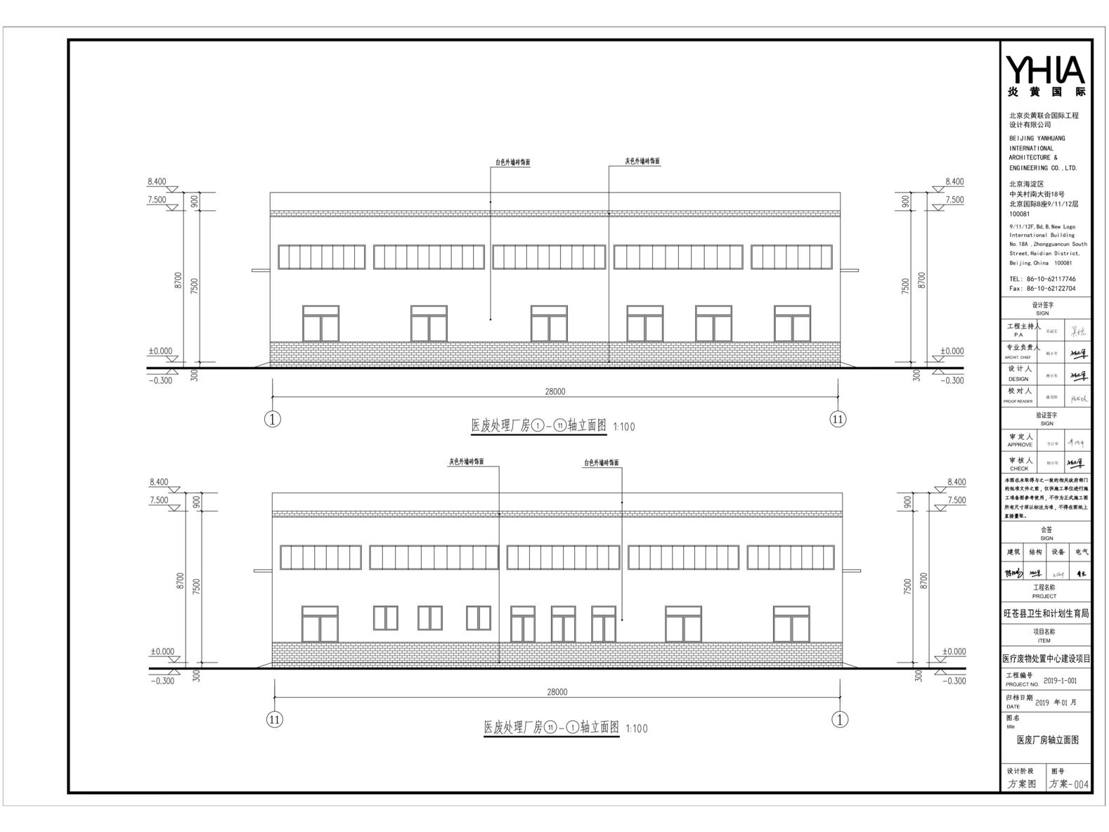
拟建方案经济技术指标为;总建筑面积962.38平方米,其中厂房515.1平方米,办公399.48平方米,门卫30.72平方米,独立设备房17.08平方米。容积率0.33,建筑占地面积762.64平方米,建筑密度26.31%,绿地率36.5%,停车位10辆。

根据《中华人民共和国行政许可法》、《中华人民共和国城乡规划法》、《四川省城乡规划条例》、《关于城乡规划公开公示的规定》的规定,我局在建设项目现场、县政府网站(http://www.scgw.gov.cn)予以公示。公示时间:2019年5月30日至2019年6月11日。敬请利害关系人以及广大市民在公示期内对该项目建设相关事项向我局提出书面意见或建议,也可于5日内向我局提出听证申请。联系电话:0839-6211360。

特此公示

附:1.建设方案总平面布置图

2.建设方案效果图

3.建设方案平面图

4.建设方案立面图

二0一九年五月三十日


附件:效果图.jpg
附件:平面图1.jpg
附件:平面图2.jpg
附件:立面图1.jpg
附件:立面图2.jpg