网站支持IPv6
当前位置:首页 公示公告 > 旺苍县自然资源局关于旺苍县铭恒驾驶员培训学校办公综合楼项目的设计方案及经济技术指标的公示
旺苍县自然资源局关于旺苍县铭恒驾驶员培训学校办公综合楼项目的设计方案及经济技术指标的公示
发布时间:2020-10-19 来源:县自然资源局 点击量:12972 [ 字体: ] 打印 分享:

一、基本情况

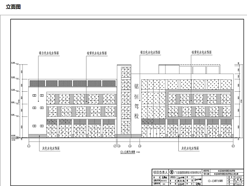
旺苍县铭恒驾驶员培训学校办公综合楼项目位于旺苍县东河镇,东临旺苍客运站,南侧为旺苍职中,西侧临近恩广高速,用地面积约10688㎡。

二、公示主要内容

拟建方案经济技术指标为:新建办公综合楼一栋,用地面积10688㎡,建筑占地面积534.4㎡,总建筑面积2137.5㎡,建筑密度5%,容积率0.2,绿地率35%,非机动车停车位111个,机动车停车位20个。(附图见后)

三、公示说明

(一)公示依据:《中华人民共和国城乡规划法》、《四川省城乡规划条例》;

(二)公示时间:2020年10月19日至10月27日;

(三)公示地点:旺苍县人民政府网站、旺苍县自然资源局公示栏、项目现场;

(四)反馈意见方式:敬请利害关系人以及广大市民在公示期内对该项目建设相关事项向我局提出书面意见或建议,并留下真实姓名和联系方式。

1.来信请寄至:旺苍县西凤巷104号,旺苍县自然资源局,邮政编码:628200

2.联系电话:0839-4315042


                                                            旺苍县自然资源局

                                                            2020年10月19日



附图:

1.建设方案总平面布置图及经济技术指标

      

2.建设方案鸟瞰图

      

      3.建设方案效果图

4.建设方案日照分析图

5. 建设方案立面图