网站支持IPv6
当前位置:首页 公示公告 > 旺苍县自然资源局关于旺苍县城乡幼儿园建设项目-旺苍县西河幼儿园设计方案及经济技术指标的补充公示
旺苍县自然资源局关于旺苍县城乡幼儿园建设项目-旺苍县西河幼儿园设计方案及经济技术指标的补充公示
发布时间:2023-04-21 来源:县自然资源局 点击量:3404 [ 字体: ] 打印 分享:

一、基本情况

该项目位于旺苍县嘉川镇何家坝片区,主要是在原西河小学场地上进行设计幼儿园功能用房、室外活动场地及其他配套设施,规划9个幼儿班级及配套功能用房。2022年10月31日,县政府十九届第26次常务会议批准同意了旺苍县城乡幼儿园建设项目-旺苍县西河幼儿园设计方案。2023年4月17日,旺苍县教育局向县政府申请对旺苍县城乡幼儿园建设项目-旺苍县西河幼儿园设计方案及经济技术指标进行调整。经县政府同意,现将调整方案予以公示。

二、公示主要内容

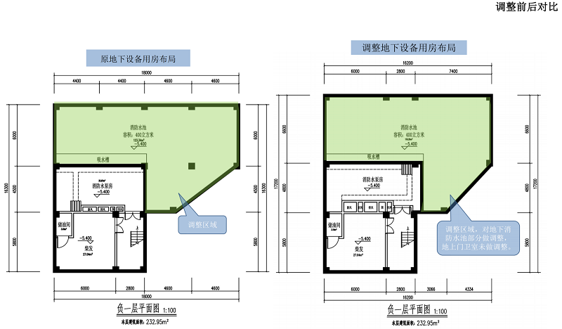
调整背景:因在征地过程中与村上协商处理后,为了给村民预留上山通行空间,在靠近场地东侧预留1.5米宽通行道路,在留足道路扩宽的空间后,项目总用地面积变为4673.50平方米。因此,特提出本次调整方案。

调整内容:本次调整方案在保证原建筑布局、新建建筑面积、车位指标不发生变化,在保持地上门卫布局、消防水池容量、地下建筑高度及造价不变的基础上,为保证退距,地下设备用房尺寸由原18*16.3米调整为16.2*17.2米,均未超过地块控规指标。因用地面积发生变化,容积率等相关的经济技术也发生了变化。

拟建方案总经济技术指标为:规划总用地面积4673.5㎡;规划总建筑面积3953.2㎡;地上计入容积率的建筑面积3720.25㎡,其中,幼儿教学综合楼3660.81㎡,门卫室292.39㎡(地上59.44㎡,地下232.95㎡);地下不计入容积率的建筑面积232.95㎡;容积率0.796;建筑密度23.13%;总建筑基底面积1081.18㎡,其中,幼儿教学综合楼1021.74㎡,门卫室59.44㎡;绿地面积1739.88㎡,其中,部分绿地室外活动场地427.00㎡,其他绿地面积1312.88㎡,绿地率37.23%;室外活动场地1380㎡;机动车位13辆,其中,校外5辆,校内8辆;非机动车位0辆。

三、公示说明

(一)公示依据:《中华人民共和国城乡规划法》、《四川省城乡规划条例》;

(二)公示时间:2023年4月21日至4月28日;

(三)公示地点:旺苍县人民政府网站、旺苍县自然资源局公示栏、项目现场;

(四)反馈意见方式:敬请利害关系人以及广大市民在公示期内对该项目建设相关事项向我局提出书面意见或建议,并留下真实姓名和联系方式。

1.来信请寄至:旺苍县西凤巷104号,旺苍县自然资源局,邮政编码:628200

2.联系电话:0839-4315042

附件:   1.原建设方案总平面布置图

2.调整后方案总平面布置图

3.原建设方案经济技术指标

4.调整后建设方案经济技术指标

5.原建设方案鸟瞰图

6.调整后建设方案鸟瞰图

7.调整前后对比1

8.调整前后对比2


旺苍县自然资源局

2023年4月21日


1.原建设方案总平面布置图

2.调整后方案总平面布置图

3.原建设方案经济技术指标

4.调整后建设方案经济技术指标

5.原建设方案鸟瞰图

6.调整后建设方案鸟瞰图

7.调整前后对比1

8.调整前后对比2